Overview
Description
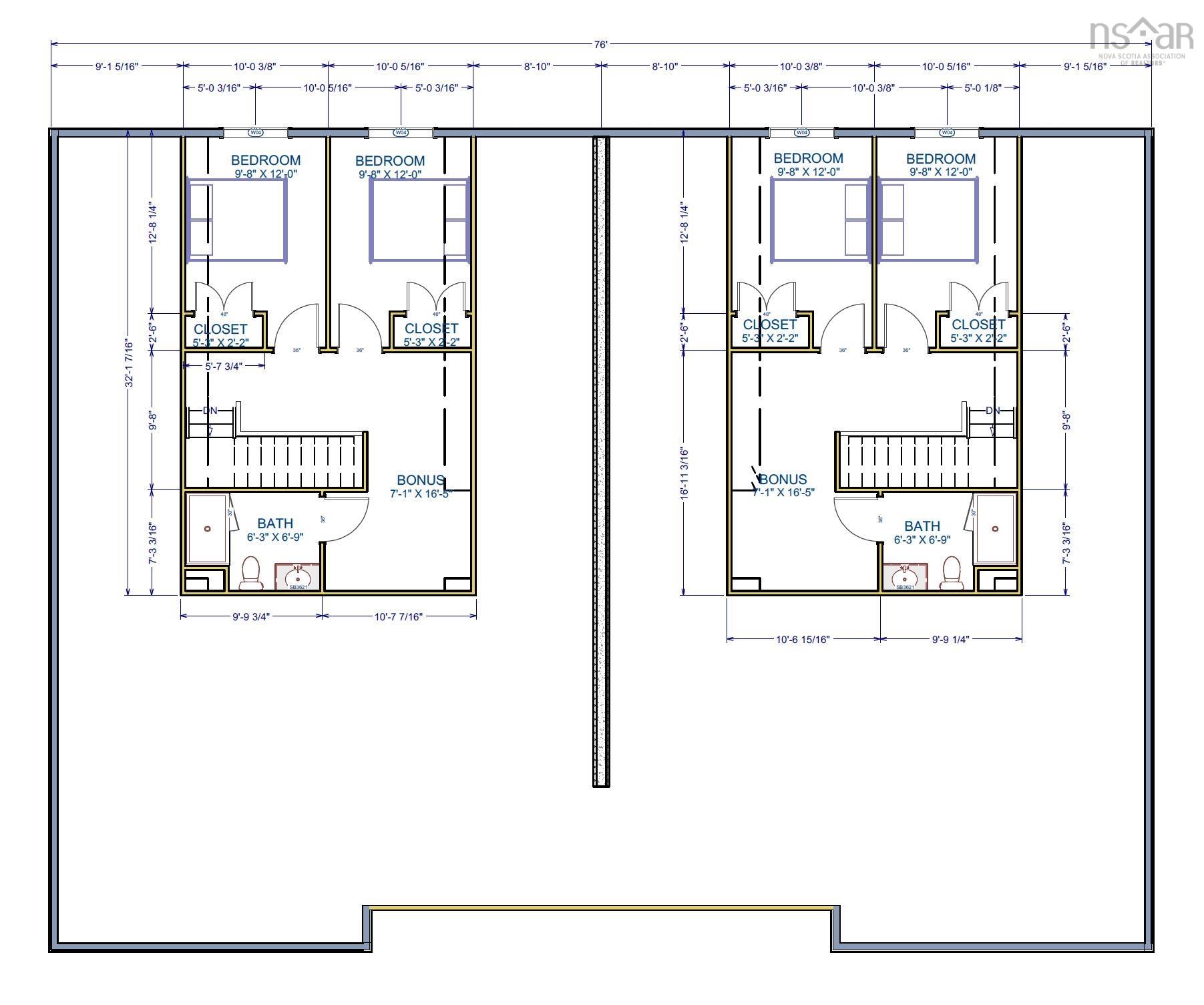
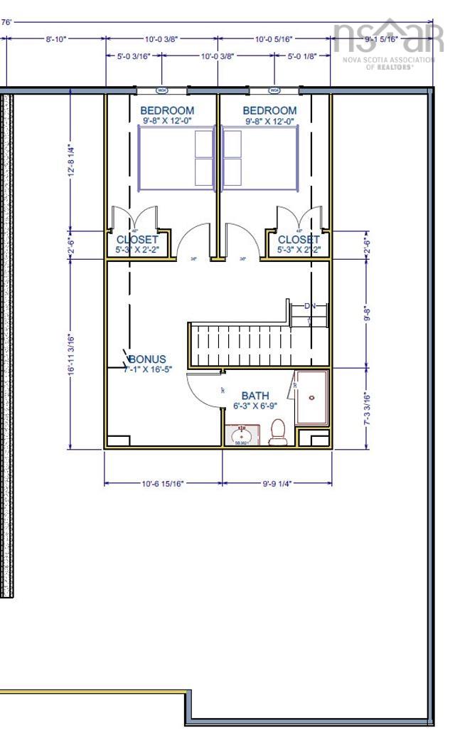
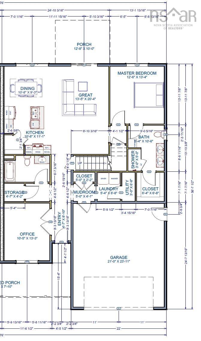
Discover this soon to be constructed stunning residential duplex located on the highly desirable Roundhouse Drive. This remarkable 2,067 sq. ft. home presents an excellent opportunity for the astute buyer, featuring 3 spacious bedrooms, den/office/4th bedroom and 3 well-appointed bathrooms. The main level offers in floor radiant heating and is where you’ll find the primary bedroom, complete with a luxurious 4-piece ensuite and a generous walk-in closet. Venture to the upper level, where two additional bedrooms are accompanied by a bonus area and another of the bathrooms. The impressive 9-foot ceilings on the homes lower level allow for an abundance of natural light, enhancing the overall ambiance. The open-concept layout of the kitchen, dining, and great rooms creates a seamless flow for effortless living and entertaining. Practical features include ample storage, a utility room, and a convenient laundry area located on the main floor. The double garage opens into a mudroom that easily connects to the laundry and utility spaces, ensuring a smooth transition for bringing in groceries and other items. This home is not just a residence; it's a lifestyle waiting for you and built proudly by Ziegler Homes Ltd.
Contact us about this listing & It's History
Neighborhood Information
Bridgewater, NS
Bridgewater is a vibrant city in Nova Scotia, Canada, located on the LaHave River. It is the largest town in the South Shore region known for its picturesque beauty and bountiful nature. This town offers a harmonious blend of urban and rural living with an array of amenities such as healthcare facilities, schools, and a community college.
The city is known for its friendly community, safe neighborhoods, and a low cost of living compared to many other cities in Canada. It also hosts popular events like the Afterglow Art Festival and the Christmas on the LaHave parade. However, the city is not as bustling as larger Canadian cities, which may be a downside for those seeking a fast-paced urban lifestyle.
The population of Bridgewater is approximately 8,532.
85
Compared with other cities in Canada, Bridgewater offers a good quality of life, particularly for those who appreciate a quieter, more rural setting. Its community spirit, safety, and affordability make it a desirable place to live. It scores an 85 out of 100.
Search Nearby Activities90
The schools in Bridgewater are known for their quality education and student support, making them competitive with other Canadian cities. The town has several public schools that offer a nurturing learning environment. The Bridgewater Junior Senior High School and Park View Education Centre are particularly well-regarded. The city's schools score an impressive 90 out of 100.
Search Nearby Schools80
For entertainment, Bridgewater offers a mix of cultural and leisure activities. The city has a movie theater, bowling alley, and several restaurants and cafes. The annual Afterglow Art Festival showcases local and regional artists. The city scores an 80 out of 100 in terms of entertainment.
Search Nearby Restaurants90
In terms of outdoor activities, Bridgewater boasts a myriad of opportunities. With the LaHave River, numerous parks, and trails, its a paradise for nature lovers. Residents enjoy boating, fishing, hiking, and bird watching. The city scores a high 90 out of 100 for outdoor activities.
Walk Score - 42%Map
Similar Properties
Properties within the same area, priced within 20% of the listing will be evaluated on several key factors including the number of bathrooms, bedrooms, additional features, and price per square foot and several other factors. Using these comprehensive comparisons, we derive a Similarity Score to help you find the best match.Mortgage Calculator
Estimated Monthly Payment:
Monthly mortgage and property tax payments are estimates for which we bear no responsibility.
Homeowners could also be subject to mortgage insurance premiums, homeowners insurance premiums, and other costs.
Property Details
| On Market Date | 2026-01-21T18:41:32.1 |
| Status | ACTIVE |
| Price | $618,000.00 |
| Neighborhood | South Shore |
| Location | Lat: 44.378253, Lng: -64.504748 |
| Bedrooms | 3 |
| Bathrooms (Full) | 3 |
| Bathrooms (Total) | 3 |
| Square Feet | 2,067.00 |
| Lot Size | 22,000.00 22000 |
| Heating | Baseboard,Heat Pump -Ductless,In Floor,Radiant,Ductless Cooling |
| Water Source | Municipal |
| Sewer | Municipal |
| Roof | Asphalt Shingle |
| Flooring | Vinyl Plank |
| Lot Features | Partial Landscaped |
| Community Features | Golf Course,Park,Recreation Center,School Bus Service,Shopping,Place of Worship |
| Association Fee | 0.00 |
| Listing Office Name | Engel & Volkers (Lunenburg) |
| Listing Agent | Erwin Huber |
| MLS® | 202601264 |
No representation is made as to the accuracy of any description. All measurements and square footages are approximate and all information should be confirmed by customer.


