Overview
Description
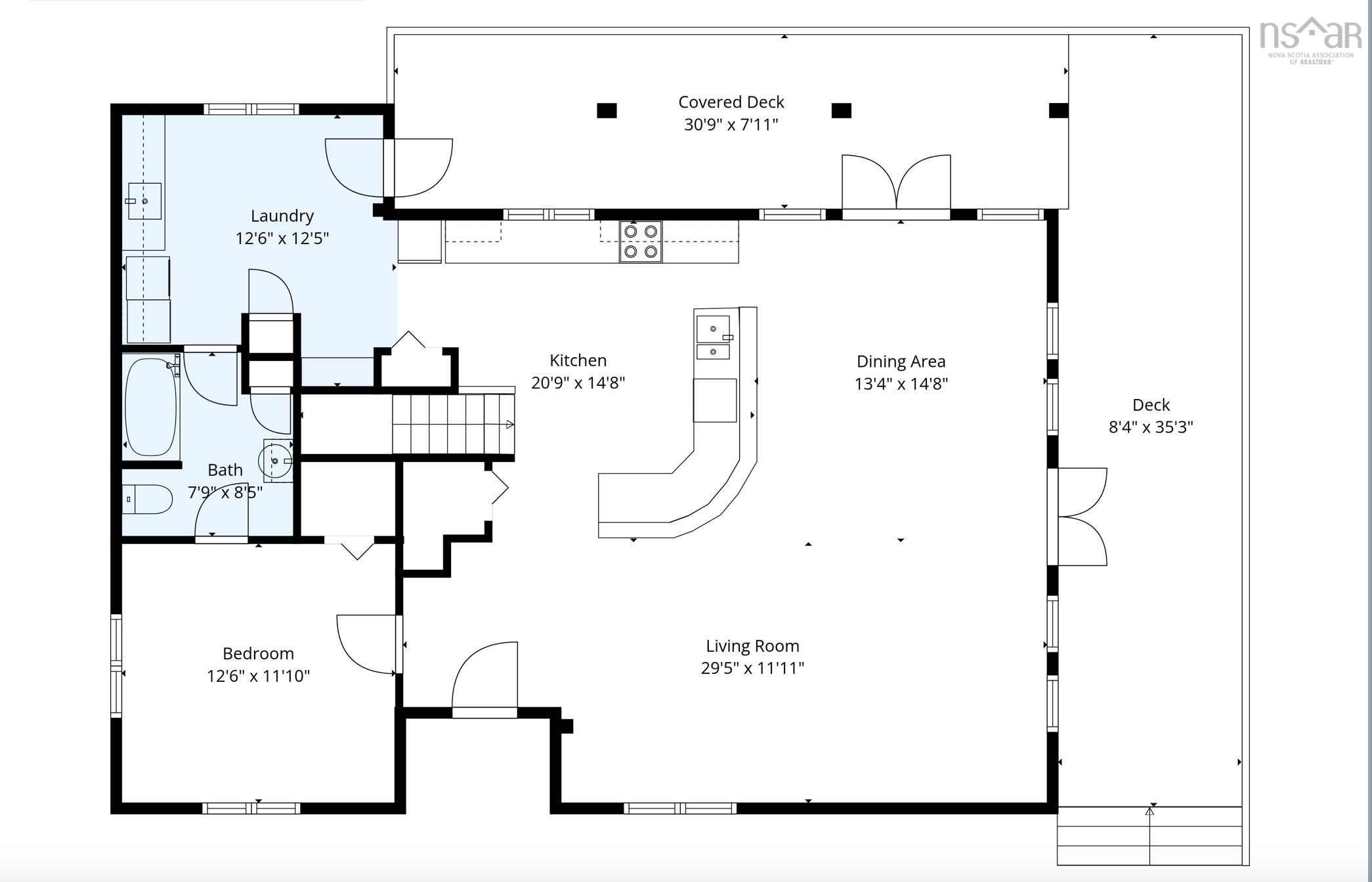
This beautifully maintained three-bedroom, two-bathroom "Dow and Duggan" log home sits on a private, well-manicured 2.83-acre property just outside Sherbrooke, Nova Scotia. With 230 feet of waterfront on the St. Mary's River, this property is perfect as a vacation home or year-round residence. The open-concept great room includes a large living/dining space and kitchen with generous ceramic counter space and cupboards. Enjoy stunning views from the many floor-to-ceiling windows and three separate walkouts to the large wrap-around deck. The deck is ideal for enjoying breathtaking sunrises and river views with your morning coffee or evening barbecues. All rooms on the main level feature post-and-beam style vaulted ceilings, providing an elegant setting for family memories. This level also includes a convenient laundry area and a breakfast nook. A walkout lower level boasts two large bedrooms, one full bathroom, and a recreation room anchored by a warm wood-burning stove for cozy evenings. Outdoor & Location The property features direct river access for swimming, boating, and fishing. The grounds include outdoor fire pits, ample parking spaces, and landscaped areas designed for relaxation and play. • 5 Minutes: Sherbrooke shops, schools, recreation center, and medical services. • 15 Minutes: Atlantic Ocean beaches. • 40 Minutes: Antigonish.
Contact us about this listing & It's History
Neighborhood Information
Goldenville, NS
Goldenville is a small community located in the province of Nova Scotia in Canada. The area is steeped in history, having been a hub of gold mining in the 19th century. The community is surrounded by lush greenery, scenic landscapes, and the beautiful St. Mary's River. Residents enjoy a serene, rural lifestyle with plenty of opportunities for outdoor activities such as fishing, hiking, and bird watching. The community is friendly and tightly-knit, but some may find the amenities and services limited due to the small size of the area.
The cost of living is relatively low compared to larger cities in the country, and housing is affordable. However, job opportunities may be limited to certain sectors. The lack of urban hustle and bustle might be a drawback for some, while others may see it as a perfect escape from city life.
65
When considering living in Goldenville relative to other cities in Canada, the city scores highly for its peaceful environment, natural beauty, and affordable cost of living. However, its small size and remote location may pose challenges in terms of career opportunities and access to certain services. Overall, the city scores a 65 out of 100 for liveability.
Search Nearby Activities70
The schools in Goldenville, like the community, are small. They offer a nurturing, personalized environment that may be lacking in larger, more crowded educational institutions. However, they might not offer as many opportunities for extracurricular activities and advanced classes. The school system scores a 70 out of 100.
Search Nearby Schools60
Entertainment options in Goldenville are more geared towards outdoor pursuits and community activities. Residents can partake in fishing, hunting, hiking, and boating. For those who prefer a more active nightlife or diverse cultural scene, the options may be limited. Thus, Goldenville's entertainment score is 60 out of 100.
Search Nearby Restaurants85
Goldenville excels in terms of outdoor activities. The city's prime location by the St. Mary's River and the vast green spaces provide ample opportunities for fishing, boating, hiking, and nature trips. The city's outdoor activities score is a solid 85 out of 100.
Walk Score - 1%Map
Similar Properties
Properties within the same area, priced within 20% of the listing will be evaluated on several key factors including the number of bathrooms, bedrooms, additional features, and price per square foot and several other factors. Using these comprehensive comparisons, we derive a Similarity Score to help you find the best match.Mortgage Calculator
Estimated Monthly Payment:
Monthly mortgage and property tax payments are estimates for which we bear no responsibility.
Homeowners could also be subject to mortgage insurance premiums, homeowners insurance premiums, and other costs.
Property Details
| On Market Date | 2026-01-10T14:05:15.8 |
| Status | ACTIVE |
| Price | $599,000.00 |
| Year Built | 1999 |
| Neighborhood | Highland Region |
| Location | Lat: 45.135507, Lng: -62.000405 |
| Bedrooms | 3 |
| Bathrooms (Full) | 2 |
| Bathrooms (Total) | 2 |
| Square Feet | 2,116.00 |
| Lot Size | 123,275.00 123275 |
| Appliances | Barbeque,Range - Electric,Dishwasher,Dryer - Electric,Washer,Refrigerator,Water Purifier |
| Heating | Baseboard,Hot Water,Stove |
| Water Source | Dug |
| Sewer | Septic |
| Interior Features | Wood Stove(s) |
| Roof | Asphalt Shingle |
| Flooring | Ceramic,Engineered Hardwood,Laminate,Linoleum,Vinyl |
| Lot Features | Partially Cleared,Hardwood Bush,Partial Landscaped,Sloping/Terraced,Year Round Road |
| View | Access: River Front,View: River |
| Community Features | Playground,Recreation Center,School Bus Service,Shopping,Place of Worship,Beach |
| Association Fee | 0.00 |
| Assessments | 425100 |
| Listing Office Name | Re/Max Park Place Inc. (Antigonish) |
| Listing Agent | Nancy Henning |
| MLS® | 202600530 |
No representation is made as to the accuracy of any description. All measurements and square footages are approximate and all information should be confirmed by customer.


